Oferta nr LS-28322

cena 1200000 zł
rodzaj Lokal
typ Sprzedaż
rodzaj budynku: pawilon
lokalizacja: Jelenia Góra, Zabobrze
powierzchnia 336.03 m2
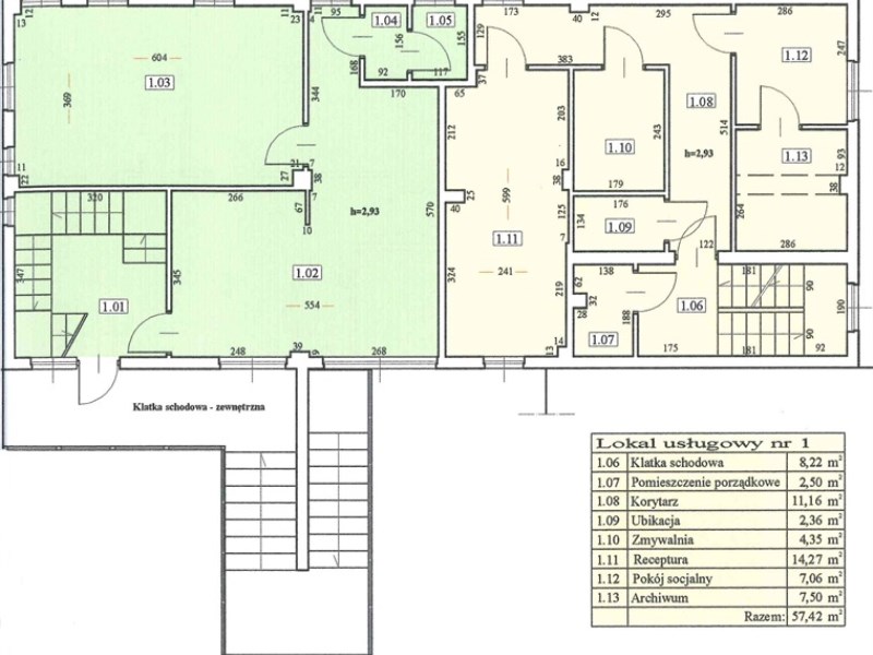
Atrakcyjny budynek handlowo-usługowy o pow. całkowitej 336,03 m2. Usytuowany na działce o pow. 158 m2, w centrum osiedla mieszkalnego Zabobrze II, przy głównym ciągu pieszych ulicy Grażyny Bacewicz. Funkcja obiektu zakłada pomieszczenia użytkowane przez 2 niezależne lokale: - lokal nr 1 o pow. 169,51 m2 z powierzchnią handlowo-ekspozycyjną: parter + I piętro - lokal nr 2 o pow. 166,52 m2: I i II piętro (wejście z zewnętrznej klatki schodowej) Pomieszczenia w obu lokalach są oddzielone ściankami z płyt GK - istnieje możliwość ich zdemontowania i w konsekwencji utworzenia dużych, otwartych powierzchni na 3 kondygnacjach. Budynek o konstrukcji żelbetowej jest częściowo podpiwniczony (piwnica o pow. 23,49 m2). Stropodach płaski pokryty papą. Fundament i ściany piwnic żelbetowe. Schody żelbetowe dwubiegowe proste i drewniane czterobiegowe łamane. Ściany pierwszej kondygnacji z bloczków betonu komórkowego, kolejne kondygnacje z bloczków termo-mur. Stropy żelbetowe. Stolarka okienna i drzwiowa aluminiowa i PCV. Posadzki cementowe, lastrykowe, płytki terakota i wykładziny przemysłowe. Obiekt wyposażony jest w instalację wodną, kanalizacyjną, elektryczną, telefoniczną. Budynek jest w ciągłej eksploatacji - lokale w górnych kondygnacjach są użytkowane przez najemców, natomiast na parterze do niedawna funkcjonowała jedna z najstarszych aptek w Jeleniej Górze. Serdecznie zapraszam na prezentację.  

dane agenta Jacek Wasak
licencja: 12484
+48511848394
wyślij email

Wyszukiwarka

Mieszkania na sprzedaż

Mieszkania na wynajem

Domy na sprzedaż

Domy na wynajem

Działki na sprzedaż

Działki na wynajem

Lokale na sprzedaż

Lokale na wynajem

Hale na sprzedaż

Hale na wynajem

Obiekty na sprzedaż

Obiekty na wynajem

O firmie

Kontakt

przejdź do pełnej wersji strony
zobacz także
© ABN STĘPIEŃ NIERUCHOMOŚCI
wykonanie: Aplikacje internetowe Galactica